❋
Mint Landscape Design
People. Place. Nature.
What we do.
Passionate about people, place and planet.
Founded by Catrin Menzies, Mint Landscape Design takes a tailored approach to every project, offering bespoke, professional design services for people, place and planet.
❋ Landscape Architecture
Design-led and rooted in regenerative principles, Mint Landscape Design offers comprehensive Landscape Architecture services across planning and design.
From feasibility studies and concept development to planting for biodiversity net gain and detailed construction information, we support projects through every stage of the RIBA plan of work — from first sketches to long-term stewardship
❋ Garden Design
We design thoughtful, bespoke gardens that reflect the people who use them and the places they inhabit.
Whether it’s a compact courtyard or a large family garden, our designs balance creativity and practicality to deliver spaces that are beautiful, sustainable, and built to last.
❋ Planting Design
Planting is what brings a garden to life. Our planting designs are tailored to your space, crafted with seasonal interest, sustainability, and long-term success in mind.
Led by RHS-qualified designer Catrin, our process includes detailed palettes, layout drawings, and collaboration with gardeners to ensure every plant thrives — from first planting to ongoing care.
❋ We work on projects across the UK and are always interested to hear from new collaborators, clients and designers!
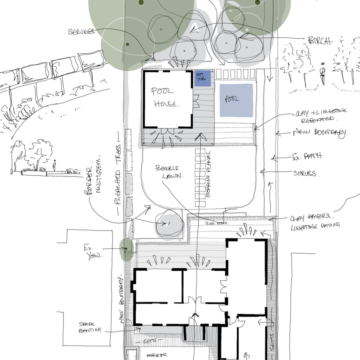
Portfolio
Take a look at a selection of our recent projects, crafted with care and designed to make an impact. Each one tells a story of creativity, collaboration, and place.
Each project is unique & celebrated…

